Добро пожаловать на http://vipplan.ru

Випплан Москва - это тысячи проектов домов в нашем каталоге!

Вы всегда сможете найти для себя проект дома вашей мечты! Даже если этого не случилось, мы готовы в любую минуту предложить проект индивидуального дома.

Забыли пароль?
Вы еще не регистрировались?

Перейдите по ссылке ниже на страницу регистрации.

Регистрация...

Внимание!!!

В проектную документацию могут быть внесены изменения любой сложности, в соответствии в Вашими пожеланиями!

Полезные статьи

Виды бассейнов

В наше время, строительство бассейна на территории своего участка, не такая уж и роскошь. Выбор видов и стилей бассейна, на сегодняшний день, очень большой....

Вентиляция в подвале дома

Без подвала или цокольного этажа в частном доме, в наше время, не обойтись. Это полезное для дома помещение должно быть хорошо вентилируемым. В доме с подвалом должна быть хорошая циркуляция воздуха, для сохранения находящихся в нем продуктов. Отсутствие вентиляции  может привести к образованию плесени и сырости не только в подвале, но и во всем доме....

Проекты домов и коттеджей > Каталог проектов домов > Проект одноэтажного дома с террасой и мансардой Vg2749

Проект одноэтажного дома с террасой и мансардой Vg2749

Проект одноэтажного дома с террасой и мансардой
Зарегистрируйтесь

Проект № Vg2749


Техническое описание
Общая площадь: 173.46 м2
Жилая площадь: 82.52 м2
Высота здания: 8.51 м
Размеры дома: 11.8м×11.9м
Кол-во комнат: 4
Цокольный этаж: нет
Гараж: нет
Мансарда: есть

Kонструкция
Фундамент: монолитная плита
Перекрытия: балки
Материал стен: Газобетон

Архитектурный раздел
Конструктивный раздел
АР+КР - 56 000 (Со скидкой 20%)
Одноэтажный дом с террасой и мансардой, с размерами здания 11,80 х 11,90 м. Наружная отделка здания – сайдинг под дерево. Фундамент – монолитная ж/б плита с ребрами жесткости под несущие стены. Наружные стены – газобетонный блок. Внутренние стены – газобетонный блок. Перегородки – газобетонный блок, ГКЛ по металлическому каркасу. Пол первого этажа – по монолитной ж/б плите. Межэтажное перекрытие - металлические балки. Крыша многоскатная. Кровля – битумная черепица. Лестница - деревянная по металлическому каркасу. Окна — металлопластиковые.
Генплан застройки участка / Паспорт проекта 7000 руб / 10000 руб
Инженерный раздел (полный) 86500 руб
Смета на строительство 43250 руб
Теплотехнический расчет материалов стен Бесплатно
Стоимость проекта со незначительнми изменениями 65650 руб
Стоимость проекта со средними изменениями* 78700 руб
Стоимость проекта со значительными изменениями** 82100 руб

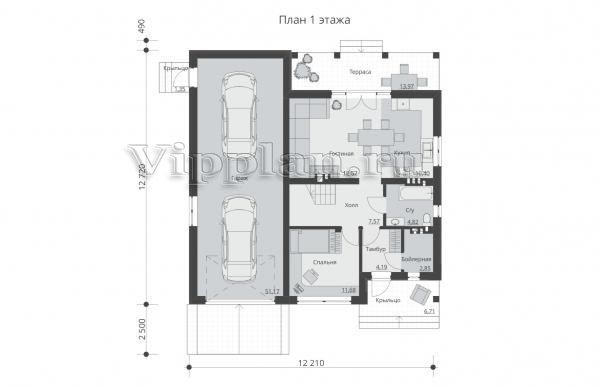
План первого этажа


Тамбур - 4,19 м2
Холл - 7,57 м2
Спальня - 11,68 м2
Гараж - 51,17 м2
Гостиная - 18,57 м2
Кухня - 10,40 м2
С/у - 4,82 м2
Бойлерная - 2,85 м2

План мансардного этажа


Холл - 3,36 м2
Спальня - 28,64 м2
С/у - 6,58 м2
Спальня - 23,63 м2
Проект одноэтажного дома с террасой и мансардой Проект одноэтажного дома с террасой и мансардой Проект одноэтажного дома с террасой и мансардой Проект одноэтажного дома с террасой и мансардой

Модификации проектов

Внесение изменений и привязка к участку строительства

В любой из проектов от компании VIPplan - Москва по вашему желанию могут быть внесены изменения в материалы стен, материалы наружной отделки дома, а также будет произведена адаптация проекта под конкретный регион строительства (с учетом грунтов региона, геологических особенностей вашего участка и местных климатических условий) - БЕСПЛАТНО !!! (кроме проектов со скидкой и проектов наших партнеров).

Любой из проектов, размещенных на сайте moskva.vipplan.ru мы можем выполнить из требуемых вам строительных материалов: ячеистый бетон (газобетон, пеноблок), керамоблок, кирпич, шлакоблок, бетонный блок, дерево (брус, клееный брус), каркасная технология (деревянный каркас, металлокаркас (ЛСТК)).

Фасад дома и его наружную отделку так же возможно выполнить с применением различных облицовочных материалов: структурной штукатурки, (с утеплителем и без), сайдингом (пластиковый или металлосайдинг), фиброплитами, кирпича.

 
6 Избранные
проекты

Доставка проектов по России: Москва (Московская область), Санкт-Петербург (Ленинградская область), Краснодар, Ростов-на-Дону, Ставрополь, Сочи, Волгоград, Новосибирск, Белгород, Брянск, Воронеж, Саратов, Хабаровск, Астрахань, Нальчик, Владикавказ, Екатеринбург, Тюмень, Самара, Нижний Новгород, Казань, Пермь, Уфа, Челябинск, Красноярск, Ханты-Мансийск, Иркутск, Курган, Оренбург, Омск, Томск, Барнаул, Новокузнецк, Кемерово, Абакан, Чита, Якутск, Южно-Сахалинск, Петропавловск-Камчатский и страны ближнего зарубежья: Белоруссия, Украина, Казахстан