Добро пожаловать на http://vipplan.ru

Випплан Москва - это тысячи проектов домов в нашем каталоге!

Вы всегда сможете найти для себя проект дома вашей мечты! Даже если этого не случилось, мы готовы в любую минуту предложить проект индивидуального дома.

Забыли пароль?
Вы еще не регистрировались?

Перейдите по ссылке ниже на страницу регистрации.

Регистрация...

Внимание!!!

В проектную документацию могут быть внесены изменения любой сложности, в соответствии в Вашими пожеланиями!

Полезные статьи

Приготовление раствора для наливного пола

Если вы хотите чтобы пол получился ровным, наливные полы – лучший вариант. Особое внимание следует уделить приготовлению раствора. А все потому, что после нанесения на цементную стяжку или бетонное основание внести коррективы или изменить что-либо уже не получится. Поэтому к замешиванию раствора стоит подходить очень внимательно....

Выбор бригады строителей в Москве

Перед началом строительства дома перед будущим хозяином загородной недвижимости в Московской области обозначится несколько вариантов: обратиться в строительную компанию, специализирующуюся на малоэтажном коттеджном строительстве, воспользоваться услугами частной бригады; строить самому "своими руками"....

Проекты домов и коттеджей > Каталог проектов домов > Двухэтажный жилой дом Vg3167

Двухэтажный жилой дом Vg3167

Двухэтажный жилой дом
Зарегистрируйтесь

Проект № Vg3167


Техническое описание
Общая площадь: 318.75 м2
Жилая площадь: 148.77 м2
Высота здания: 11.55 м
Размеры дома: 23.76м×13.76м
Кол-во комнат: 7
Цокольный этаж: нет
Гараж: нет
Мансарда: нет

Kонструкция
Фундамент: ленточный
Перекрытия: сборные ж/б плиты
Материал стен: Газобетон

Архитектурный раздел
Конструктивный раздел
АР+КР - 84 000 (Со скидкой 20%)
Двухэтажный жилой дом, с размерами здания 23,76 х 13,76 м. Наружная отделка здания – облицовочный кирпич. Фундамент – ленточный монолитный ж/б с подошвой. Наружные стены – газобетонный блок. Внутренние стены – газобетонный блок. Перегородки – гипсовые блоки. Пол первого и второго этажа – по сборным ж/б плитам. Крыша многоскатная сложная. Кровля – металлочерепица. Окна — металлопластиковые.
Генплан застройки участка / Паспорт проекта 7000 руб / 10000 руб
Инженерный раздел (полный) 159500 руб
Смета на строительство 79750 руб
Теплотехнический расчет материалов стен Бесплатно
Стоимость проекта со незначительнми изменениями 97000 руб
Стоимость проекта со средними изменениями* 121000 руб
Стоимость проекта со значительными изменениями** 127300 руб

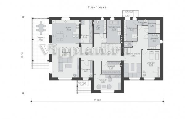
План первого этажа


Прихожая 6,20 м2
Холл 26,23 м2
Гостиная 30,14 м2
Кухня 20,76 м2
Кладовая 8,55 м2
С/у 5,39 м2
Постирочная 10,23 м2
С/у 1,55 м2
Бойлерная 9,10 м2
Топочная 1,85 м2
Парилка 5,16 м2
Душевая 6,02 м2
Спортзал 16,50 м2
Комната отдыха 25,80 м2
Гардероб 7,59 м2
Кабинет 13,63 м2

Двухэтажный жилой дом

Двухэтажный жилой дом

План второго этажа


Холл 11,34 м2
Гардероб 8,30 м2
Спальня 19,35 м2
Гардероб 7,14 м2
Спальня 20,34 м2
Ванная 8,55 м2
Спальня 19,78 м2
С/у 6,87 м2
Коридор 2,65 м2
Спальня 19,73 м2
Двухэтажный жилой дом Двухэтажный жилой дом Двухэтажный жилой дом Двухэтажный жилой дом

Модификации проектов

Внесение изменений и привязка к участку строительства

В любой из проектов от компании VIPplan - Москва по вашему желанию могут быть внесены изменения в материалы стен, материалы наружной отделки дома, а также будет произведена адаптация проекта под конкретный регион строительства (с учетом грунтов региона, геологических особенностей вашего участка и местных климатических условий) - БЕСПЛАТНО !!! (кроме проектов со скидкой и проектов наших партнеров).

Любой из проектов, размещенных на сайте moskva.vipplan.ru мы можем выполнить из требуемых вам строительных материалов: ячеистый бетон (газобетон, пеноблок), керамоблок, кирпич, шлакоблок, бетонный блок, дерево (брус, клееный брус), каркасная технология (деревянный каркас, металлокаркас (ЛСТК)).

Фасад дома и его наружную отделку так же возможно выполнить с применением различных облицовочных материалов: структурной штукатурки, (с утеплителем и без), сайдингом (пластиковый или металлосайдинг), фиброплитами, кирпича.

 
6 Избранные
проекты

Доставка проектов по России: Москва (Московская область), Санкт-Петербург (Ленинградская область), Краснодар, Ростов-на-Дону, Ставрополь, Сочи, Волгоград, Новосибирск, Белгород, Брянск, Воронеж, Саратов, Хабаровск, Астрахань, Нальчик, Владикавказ, Екатеринбург, Тюмень, Самара, Нижний Новгород, Казань, Пермь, Уфа, Челябинск, Красноярск, Ханты-Мансийск, Иркутск, Курган, Оренбург, Омск, Томск, Барнаул, Новокузнецк, Кемерово, Абакан, Чита, Якутск, Южно-Сахалинск, Петропавловск-Камчатский и страны ближнего зарубежья: Белоруссия, Украина, Казахстан